
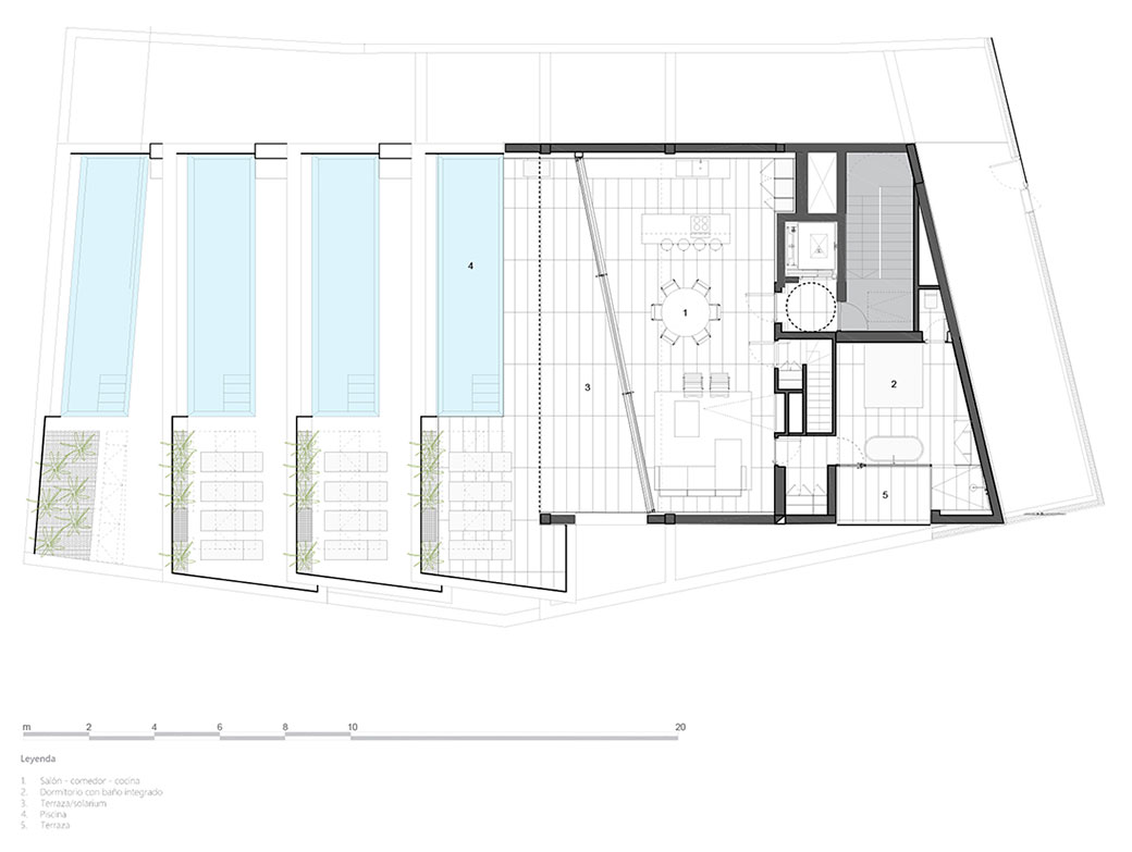
La cercanía al mar así como las vistas privilegiadas del lugar parten como premisas para el desarrollo de las 4 villas de lujo que se plantean.
Las villas se desarrollan escalonadamente adaptándose a la orografía del lugar, estas se abren hacia el mar a través de unas plataformas/prismas de hormigón que a modo de escultura resuelven las piscinas y actúan de elementos estructurales del conjunto.
Los espacios de día tales como salones, comedor y cocina se abren a la terraza, las suites por el contrario se vuelcan a una serie de patios que se plantean en el borde del conjunto y actúan de filtro verde protegiéndose del entorno.
Arquitectos
PUERTA35 ARQUITECTURA
Ubicación
San Marcos, Icod de los Vinos
Infografías
PUERTA35 ARQUITECTURA
Diseño interior
PUERTA35 ARQUITECTURA
Superficie construida
750 m2
Año de Proyecto
2018
