
El proyecto de rehabilitación integral parte de la premisa de potenciar la luz e incrementar la sensación espacial de los espacios, planteando espacios diáfanos conectados entre sí espacialmente.
El edificio original se desarrollaba a través de espacios de trabajo con poca luz natural y poca relación con el espacio exterior. El objetivo de la propuesta por tanto fue resolver la conexión de las zonas de trabajo con el exterior y plantear espacios luminosos y amplios.
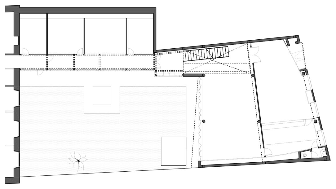
El edificio se compone de 3 espacios principales, el espacio de entrada donde se encuentran las zonas de atención al cliente, un espacio de trabajo contiguo a la zona de atención donde se desarrollan los puestos de administración y un tercer espacio donde se encuentran los espacios de dirección y las salas de reuniones. El objetivo del proyecto era plantear que esos tres espacios estuvieran relacionados, pero a la vez se entendieran como separados.
Los espacios de circulación desde la entrada del edificio a la parte antigua quedan unificados mediante un mismo material a modo de alfombra de llegada. Dicha alfombra materializada mediante pavimento de madera proporciona una conexión longitudinal en toda la intervención. La utilización del mismo recurso en parte del patio, fusiona el espacio exterior y el interior. La utilización de la madera en el paramento vertical de la doble altura, unifican también las circulaciones en las distintas plantas.
Los falsos techos articulan y delimitan las áreas de trabajo a la vez que integran las instalaciones necesarias. Se plantean espacios de trabajo flexibles, dinámicos y llenos de luz.
Arquitectos
PUERTA35 ARQUITECTURA
Ubicación
Santa Cruz de Tenerife
Fotografías
PUERTA35 ARQUITECTURA
Ingeniería
Dúo Ingeniería
Diseño interior
PUERTA35 ARQUITECTURA
Construcción
Francisco Rodríguez construcciones S.L.
Superficie construida
350 m2
Año de Proyecto
2017
