
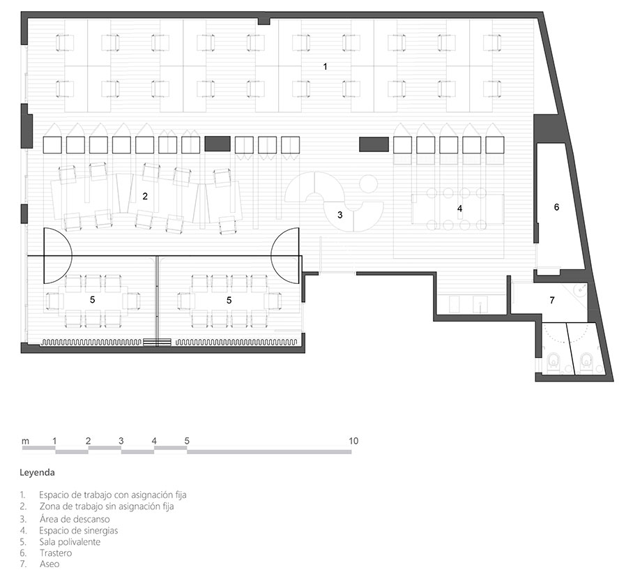
La idea general del proyecto era generar diferentes ambientes de trabajo interconectados entre si, donde se generasen sinergias.
El proyecto plantea la distribución de diferentes espacios de trabajo articulados por elementos como el mobiliario y los falsos techos. Las zonas de reunión se plantean como espacios móviles separados de los puestos de trabajo por elementos transparentes que aportan amplitud al espacio.
El elemento central del proyecto es una biblioteca y almacenamiento que se plantea como un pliegue que integra el falso techo y resuelve la iluminación del espacio, este elemento a su vez articula tres espacios diferentes. En primer lugar, los perfiles permanentes con puestos de trabajo individuales, en segundo lugar los perfiles dinámicos, principalmente nómadas digitales y por último la zona de office y cafetería.
Arquitectos
PUERTA35 ARQUITECTURA
Ubicación
Santa Cruz de Tenerife
Fotografías
PUERTA35 ARQUITECTURA
Ingeniería
Dúo Ingeniería
Diseño interior
PUERTA35 ARQUITECTURA
Construcción
Madalgeco S.L.
Superficie construida
180 m2
Año de Proyecto
2017
