
El proyecto se plantea sobre una edificación existente en estado de abandono compuesta por un volumen en piedra de una sola planta y cubierta a dos aguas que data de principios del siglo pasado adosado a otro volumen de dos plantas, de bloque de picón y estructura de hormigón, construido este último entre los años 70 y 80.
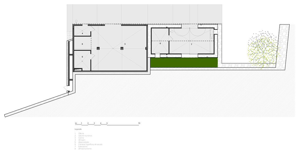
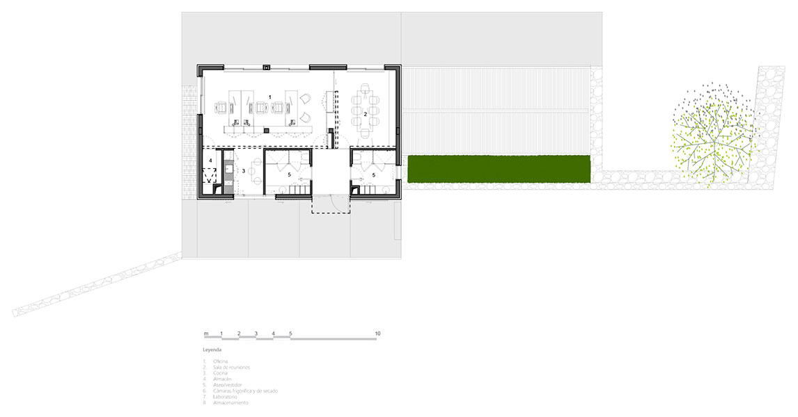
El proyecto pretende la recuperación de dichos volúmenes para crear espacios de almacén, laboratorios y oficinas para uso de las personas que se ocuparán de la explotación agrícola de la finca. La finca se plantará con árboles frutales de distintas variedades y presente ser un referente en la isla.
Ante el estado ruinoso del forjado de cubierta del volumen de dos alturas (se aprecia corrosión de las armaduras en la mayor parte de las viguetas), se decide su demolición y reconstrucción sin generar ningún aumento de volumen.
El proyecto de rehabilitación desarrolla un edificio de forma lineal en planta, constituido por un volumen de una planta y cubierta a dos aguas adosado a otro volumen de dos plantas y cubierta plana. El proyecto pretende recuperar estas dos construcciones que datan de épocas distintas y realizadas con materiales diferentes, otorgando unidad al conjunto, simplificando las volumetrías y haciéndolos más funcionales.
Mediante un tratamiento del nivel inferior con materiales de tonalidades más oscuras, se pretende unificar ambos volúmenes mediante un zócalo que recorre todo el edificio. En este nivel inferior, se situarán, además, todas aquellas actividades con una relación estrecha con las labores de la finca. Sobre este zócalo, emerge otra planta donde se sitúan los espacios administrativos (oficina, sala de reuniones y espacios de servicio). Este nivel superior, se trata con tonalidades más claras, en contraste con el nivel inferior.
Se recurre a paneles de tipo correderos o abatibles lacados del mismo color que los muros sobre los que se sitúan, lo que enfatizará la idea de zócalo continuo cuando estén cerrados.
Arquitectos
PUERTA35 ARQUITECTURA
Ubicación
Los Realejos
Infografías
PUERTA35 ARQUITECTURA
Diseño interior
PUERTA35 ARQUITECTURA
Superficie construida
210 m2
Año de Proyecto
2020
