
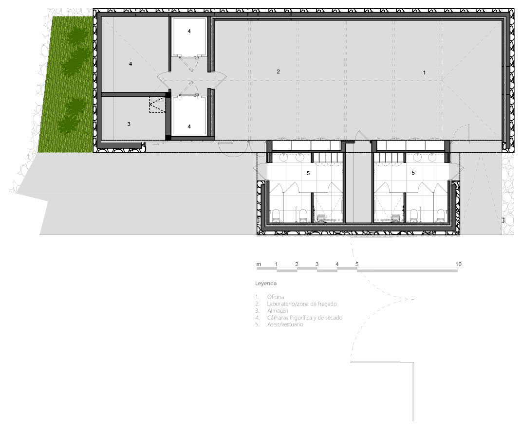
El proyecto de reconstrucción de almacén desarrolla un edificio de forma rectangular en su planta, constituido por dos volúmenes adosados. Se trata de un edificio constituido por la adición de dos volúmenes de planta rectangular, un volumen principal que contiene el programa principal del edificio y de mayor altura y un segundo volumen, de menor altura, que contiene dos vestuarios y un pequeño almacén.
Los dos volúmenes se resuelven con cubierta de teja cerámica curva, a cuatro y a un agua, y su volumetría reconstituye, de manera casi exacta, los volúmenes existentes antes de su demolición. El contacto del edificio con el terreno se resuelve mediante un zócalo en piedra, de altura variable, que se interrumpe solamente allí donde se producen los accesos. De manera general, dicho zócalo asciende hasta la altura de las puertas (2m10) y varía para adaptarse al terreno. Sobre este zócalo, la fachada del edificio se resuelve con un muro de hormigón visto y las cubiertas son de teja cerámica.
Se recurre a la madera para las carpinterías exteriores y a la utilización de paneles fijos de madera que dan continuidad a dichas carpinterías en planta baja.
Arquitectos
PUERTA35 ARQUITECTURA
Ubicación
Candelaria
Infografías
PUERTA35 ARQUITECTURA
Diseño interior
PUERTA35 ARQUITECTURA
Superficie construida
210 m2
Año de Proyecto
2020
