
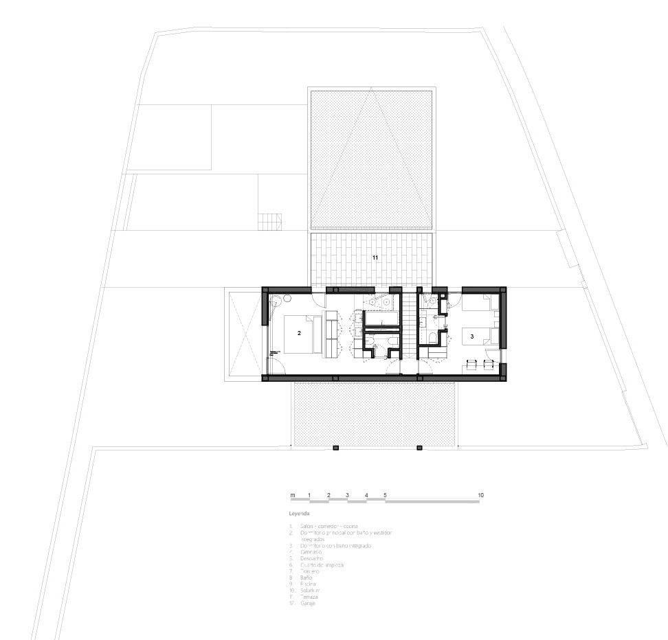
La vivienda se sitúa en un entorno rural con unas vistas imponentes hacia el mar y la montaña. Los clientes buscaban una vivienda que se desarrollara en su mayoría en planta baja en contacto directo con el exterior. Por tanto, el programa de la vivienda se desarrolla principalmente en planta baja excepto la zona de noche de la vivienda que se desarrolla en el primer nivel.
El espacio de día de la vivienda, se relaciona directamente con una plataforma exterior donde se desarrolla un gran plano de agua que se funde con el mar y las imponentes vistas del lugar. Una gran corredera tricarril permite ese contacto directo con el exterior. El espacio de trabajo y de deporte se desarrollan también en planta baja en uno de los extremos de la vivienda permitiendo más privacidad en relación con el salón-comedor-cocina. La zona de noche de la vivienda se plantea en planta alta, la suite principal se relaciona con una gran cubierta vegetal.
El juego de cubiertas inclinadas vegetales hace que la vivienda se integre mejor en un entorno rural.
Arquitectos
PUERTA35 ARQUITECTURA
Ubicación
Santa Cruz de Tenerife
Infografías
PUERTA35 ARQUITECTURA
Diseño interior
PUERTA35 ARQUITECTURA
Superficie construida
180 m2
Año de Proyecto
2021
