
La vivienda se desarrolla en un terreno con gran desnivel, se plantea un volumen ortogonal y de grandes dimensiones que se destructura con grandes aperturas tanto verticales a través de los acristalamientos, como horizontales a través de las perforaciones que se plantean en el forjado.
Los usos del blanco en la mayoría de los paramentos de la vivienda, se contraponen con paños de hormigón que se abujardan para potenciar la robustez y el contraste del material.
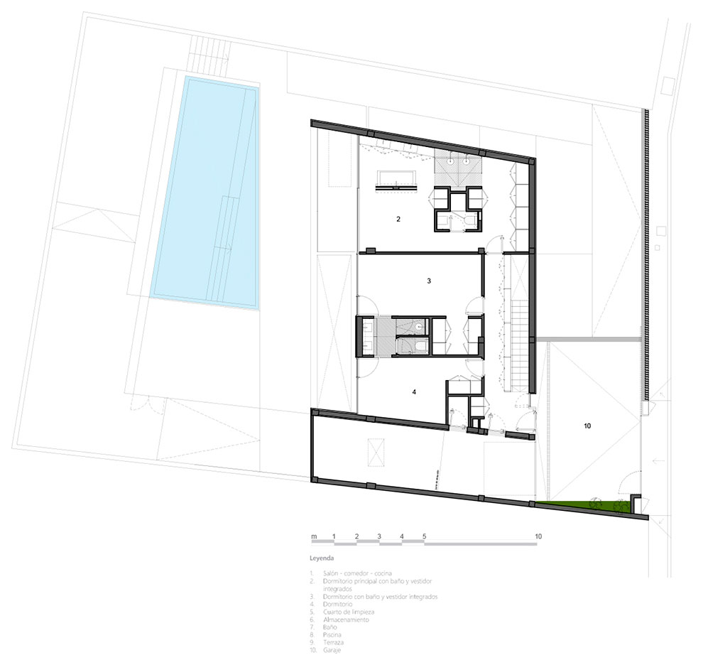
Los dormitorios se plantean en la planta superior con terrazas orientadas a las vistas del mar. En planta inferior una gran plataforma desarrolla toda la zona de día de la vivienda y los espacios exteriores. La piscina se plantea en el borde entendiéndose como un elemento de contraste en el conjunto.
Arquitectos
PUERTA35 ARQUITECTURA
Ubicación
Tabaiba Alta, Santa Cruz de Tenerife
Infografías
PUERTA35 ARQUITECTURA
Estructura
Jorge Mora
Ingeniería
Dúo Ingeniería
Arquitecto técnico
Víctor Hernández Fernández de Mesa
Diseño interior
PUERTA35 ARQUITECTURA
Construcción
Famay Construcciones S.L.
Superficie construida
220 m2
Año de Proyecto
2020
