
La luz y las vistas son dos conceptos básicos sobre los que se plantea esta vivienda firmada por el estudio PUERTA35 ARQUITECTURA, un estudio que ya cuenta con gran experiencia en viviendas singulares en los que interiorismo y arquitectura se funden en una sola.
La Casa SERMA, se encuentra en un área residencial con vistas privilegiadas hacia el océano atlántico. La topografía del lugar, obliga que la vivienda resuelva el acceso a un nivel inferior respecto al espacio exterior.
Los propietarios querían una vivienda con espacios funcionales sin renunciar en ningún caso a la belleza de la arquitectura, para ello se plantean espacios flexibles, amplios y luminosos.
El tratamiento de la envolvente es coherente con su interior, siendo muy cerrado en el sentido lateral, generando la mayor privacidad posible con la parcela contigua y abierto en el sentido transversal con grandes acristalamientos que permiten la relación del interior con las vistas y los espacios exteriores.
El proyecto, con una gran provocación e intencionalidad formal, se modela mediante planos verticales y horizontales construidos en blanco, rematado con una cornisa en todo su volumen. El aluminio plata y el vidrio son los únicos materiales que acompañan al blanco de la fachada. La luz natural hace el resto.
El plano horizontal se resuelve mediante pavimento pétreo de gran formato, con continuidad interior y exterior, salvando los grandes ventanales que quedan integrados bajo el nivel del pavimento. En el interior, todos los paramentos verticales aparecen en blanco, en contraste con el fondo verde que provocan el jardín exterior.
La iluminación interior se diseña con iluminación indirecta lineal, apoyada por luminarias puntuales integradas de haz invisible.
En el exterior, domina la superficie natural, generando las circulaciones exteriores sobre el mismo material pétreo del interior, la piscina se entiende como una continuación del pavimento interior y exterior de la vivienda. Se proyecta un vallado a calle, en coherencia con el resto del proyecto, resuelto mediante lamas verticales grises, que permiten que la se insinúe ya desde el espacio público exterior.
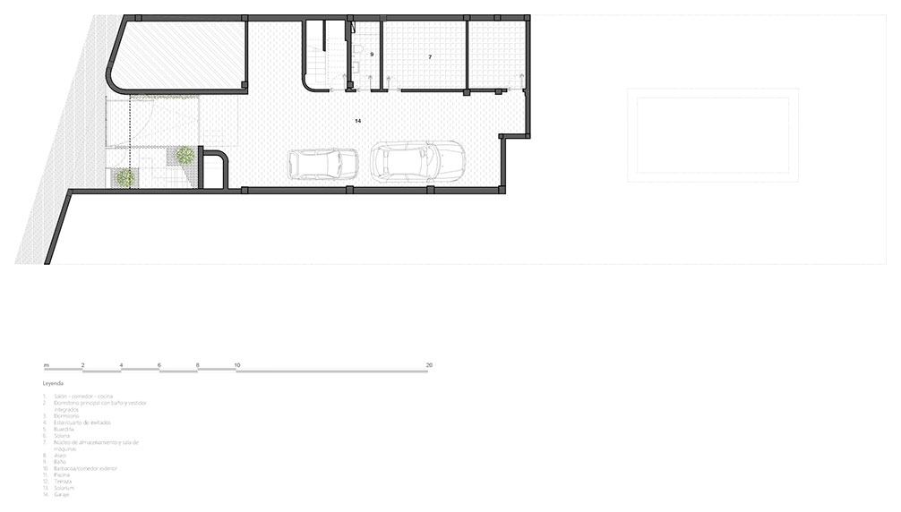
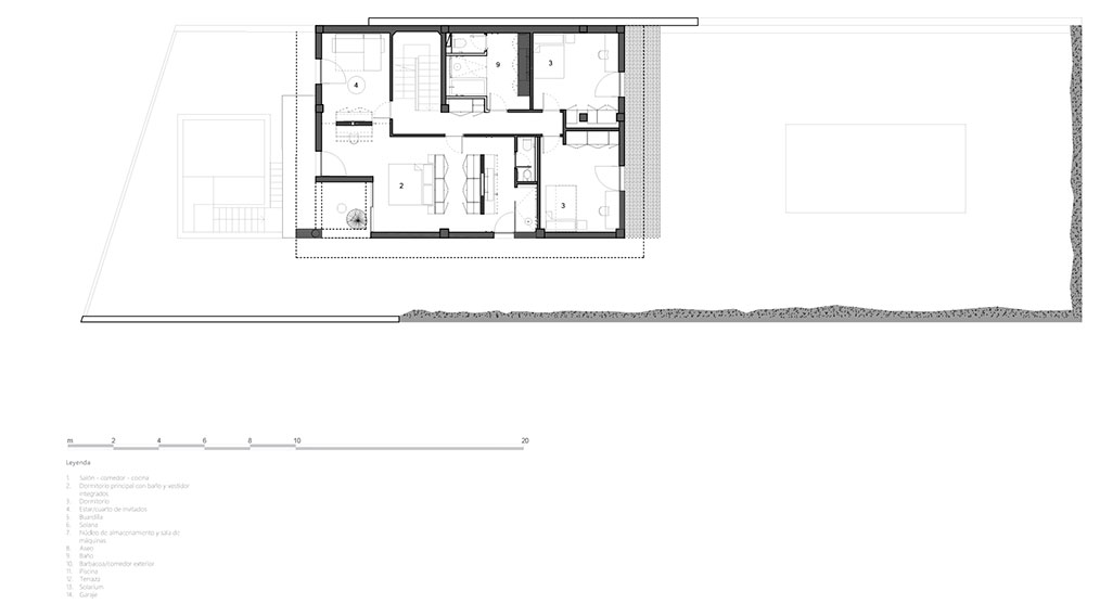
La vivienda se desarrolla en tres niveles, en el primer nivel en contacto con la calle, se desarrolla el aparcamiento y los espacios de almacenamiento, en el segundo nivel se desarrolla el espacio de día de la vivienda junto con las zonas exteriores y en el tercer nivel se desarrollan las habitaciones.
La zona de día de la vivienda se relaciona directamente con el jardín trasero y la piscina. Se plantea un espacio diáfano que gira en torno a un elemento central. Este elemento central resuelve por un lado las circulaciones a través de una gran biblioteca y por el otro la cocina. El espacio de salón y comedor se relaciona con el exterior a través de grandes puertas correderas, con esto conseguimos que el interior y el exterior de la vivienda, se fundan en un único espacio. La isla de la cocina se plantea como una gran pieza escultórica, un material pétreo con mucha textura que aporta carácter al espacio.
En la zona de noche de la vivienda se desarrolla una gran suite con vistas al mar y dos habitaciones relacionadas con el jardín y la piscina.
Arquitectos
PUERTA35 ARQUITECTURA
Ubicación
Radazul bajo, Santa Cruz de Tenerife
Fotografías
Jose Ramon Oller
Estructura
Jorge Mora S.L.P.
Ingeniería
Duo Ingeniería
Arquitecto técnico
Víctor Hernández Fernández de Mesa
Diseño interior
PUERTA35 ARQUITECTURA
Construcción
Isgomen S.L.
Superficie construida
380 m2
Año de Proyecto
2022
