
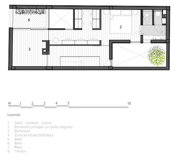
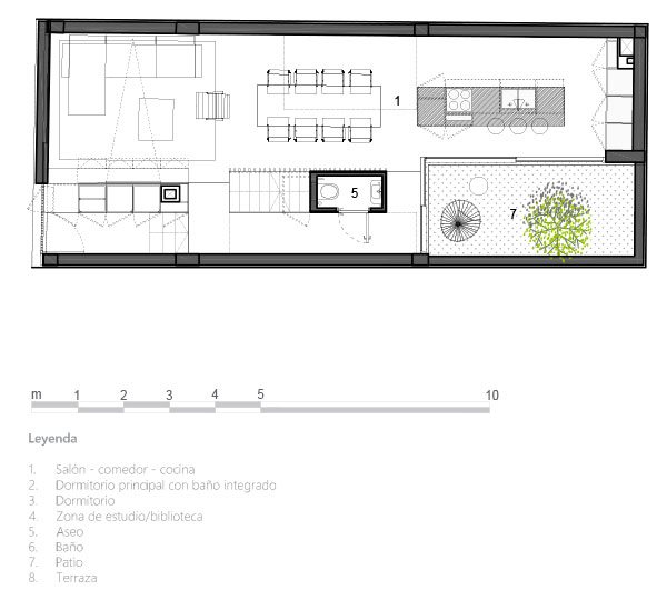
La vivienda se desarrolla en una parcela muy estrecha entre medianeras, es por esto que la búsqueda de la luz en la vivienda se plantea como un reto.
Debido a que la vivienda se sitúa en una calle estrecha y con mucho ruido, la relación con el exterior de la vivienda se plantea a través de 2 patios, un patio trasero que relaciona la zona de día de la vivienda con el espacio exterior y un patio de fachada que relaciona el espacio de trabajo de la vivienda, a su vez este patio de fachada se relaciona con el nivel inferior a través de una doble altura que se adosa a la escalera y potencia la escala del espacio. La cubierta se plantea como un gran espacio social donde se desarrolla parte de la vida de la vivienda.
Arquitectos
PUERTA35 ARQUITECTURA
Ubicación
Santa Cruz de Tenerife
Infografías / CGI’s
PUERTA35 ARQUITECTURA
Diseño interior
PUERTA35 ARQUITECTURA
Superficie construida
150 m2
Año de Proyecto
2020
