
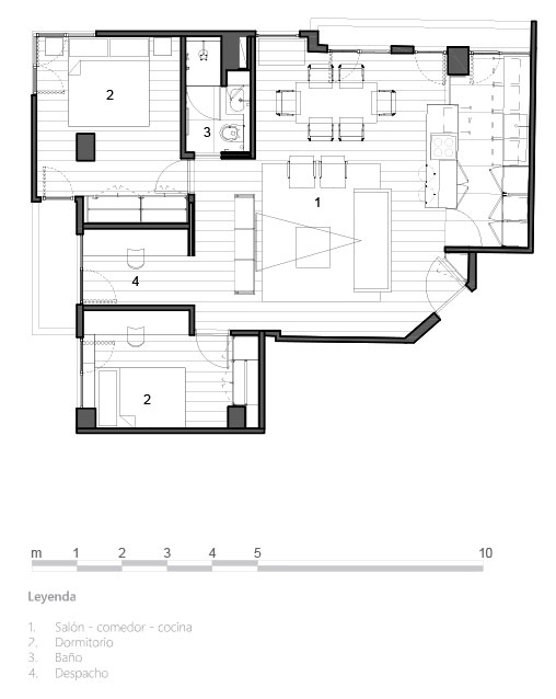
La distribución original de la vivienda excesivamente compartimentada no respondía a los requerimientos de sus nuevos propietarios. Estancias en dormitorios excesivamente grandes minimizaban la superficie publica de la vivienda. Con la nueva distribución se plantea aumentar las zonas públicas de la vivienda, reduciendo la superficie de noche.
La propuesta por tanto parte de la base de generar espacios flexibles y diáfanos que amplían la sensación espacial y potencian la luz en la vivienda.
La cocina se plantea integrada en el salón donde la isla forma parte del mobiliario. La biblioteca estructura las circulaciones de la vivienda protegiendo los accesos de las habitaciones.
La utilización de elementos neutros y claros constituyen la base de la propuesta. El roble del pavimento aporta calidez a la vivienda. Materiales como el mármol carrara en el baño o el elemento la isla aportan riqueza y textura a la pureza del entorno.
Arquitectos
PUERTA35 ARQUITECTURA
Ubicación
Santa Cruz de Tenerife
Fotografías
PUERTA35 ARQUITECTURA
Diseño interior
PUERTA35 ARQUITECTURA
Superficie construida
98 m2
Año de Proyecto
2017
