
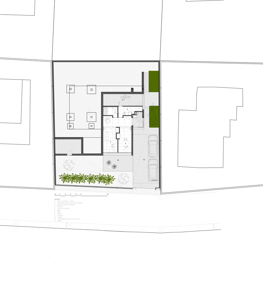
La vivienda se sitúa sobre un terreno con fuerte desnivel, el acceso principal de la vivienda se produce desde el nivel inferior donde se desarrollan las estancias de trabajo de los clientes.
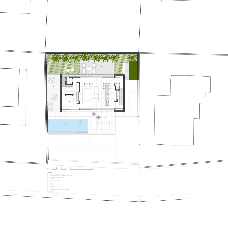
La vivienda se desarrolla sobre una plataforma donde se ubica la piscina, en el nivel superior se encuentran las estancias de día de la vivienda, tales como salón, comedor y cocina, que se abren hacia el espacio exterior y las vistas hacia el mar.
A nivel formal la vivienda se desarrolla como un pabellón que se abre tanto hacía el jardín trasero como hacia el solárium y la zona de agua y el mar.
Arquitectos
PUERTA35 ARQUITECTURA
Ubicación
Tabaiba Alta, El Rosario
Infografías
PUERTA35 ARQUITECTURA
Diseño interior
PUERTA35 ARQUITECTURA
Superficie construida
750 m2
Año de Proyecto
2021
