
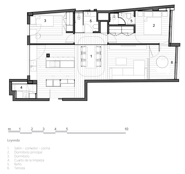
La distribución original de la vivienda excesivamente compartimentada no respondía a los requerimientos de sus nuevos propietarios. La distribución se desarrollaba a través de un pasillo largo sin ventilación y luz natural.
La propuesta por tanto parte de la base de generar espacios flexibles y diáfanos que amplían la sensación espacial y potencian la luz en la vivienda.
La cocina se plantea integrada en el salón donde la isla forma parte del mobiliario. Los módulos altos de la cocina estructuran el hall de la entrada minimizando las visiones hacia la cocina desde el acceso a la vivienda. La distribución de los accesos a las estancias se produce a través de un cubo de madera que forma a su vez el espacio de comedor.
La utilización de elementos neutros y claros constituyen la base de la propuesta. El roble del pavimento aporta calidez a la vivienda. Materiales como el mármol carrara en el baño o la isla aportan riqueza y textura a la pureza del espacio.
Arquitectos
PUERTA35 ARQUITECTURA
Ubicación
Santa Cruz de Tenerife
Fotografías
PUERTA35 ARQUITECTURA
Diseño interior
PUERTA35 ARQUITECTURA
Construcción
PUERTA35 ARQUITECTURA
Superficie construida
95 m2
Año de Proyecto
2017
