
El proyecto se sitúa en una parcela entre medianeras, la intervención plantea un vaciado con conservación de la fachada ya que esta, está protegida.
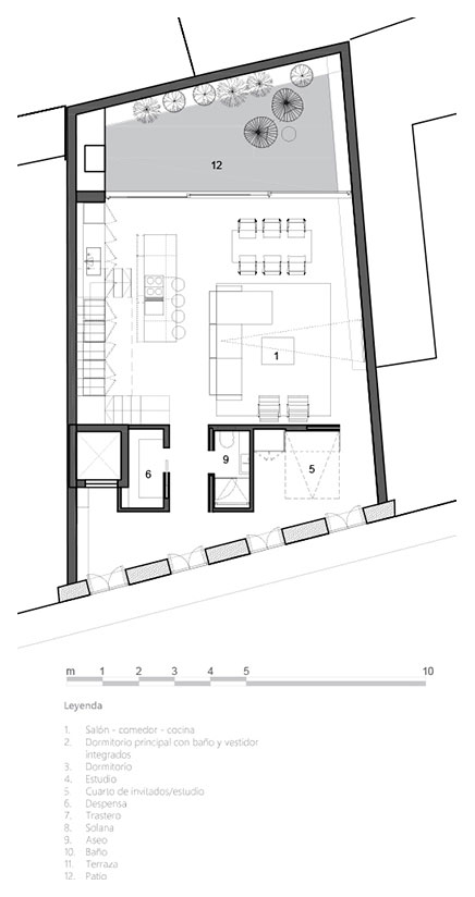
El programa, se desarrolla en 3 niveles. En el primer nivel, se desarrollan todas las zonas comunes, salón, comedor y cocina en un espacio diáfano, que se abre con un gran ventanal hacia el patio trasero. Se realiza ese patio aprovechando el ancho total de la parcela, creando así un telón de fondo vegetal para el espacio de día. Esta área de acceso recuperará el pavimento hidráulico original de las dos viviendas, para combinarlo con la solera de hormigón armado.
En el primer nivel, una escalera de hormigón visto permitirá el acceso a la segunda planta, la zona de noche. En esta planta se ubica una gran zona de estudio/biblioteca, dos dormitorios sencillos con un baño para compartir y un dormitorio suite con vestidor y baño en su interior.
Se conserva fachada existente protegida, reparándola y manteniendo misma composición de huecos, se sustituye carpinterías por otras de madera de nueva construcción, replicando la composición de las originales.
En la planta superior, se retranquea volumen con respecto a calle para no alterar a la imagen de la fachada original de casa unifamiliar de dos plantas.
Arquitectos
PUERTA35 ARQUITECTURA
Ubicación
Santa Cruz de Tenerife
Infografías
PUERTA35 ARQUITECTURA
Diseño interior
PUERTA35 ARQUITECTURA
Superficie construida
220 m2
Año de Proyecto
2022
