
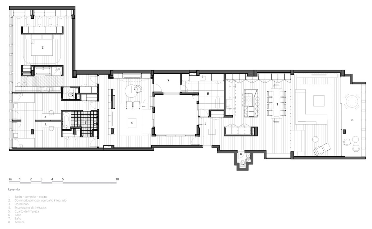
La configuración original de la vivienda resuelta a través de un pasillo excesivamente largo, minimizaba la entrada de luz natural a las zonas de circulación a la vez que potenciaba la proporción alargada de la misma.
La propuesta parte de la premisa de minimizar las zonas de circulación y potenciar la luz natural, se proponen estancias más diáfanas, reduciendo la compartimentación en la vivienda.
El acceso original de la vivienda se resolvía a través de un pasillo sin luz natural, la nueva configuración resuelve la entrada de la vivienda a través de un hall de circulación con luz natural a la escala de la vivienda.
El espacio público se entiende como un lugar dinámico y lleno de actividad. La apertura de La cocina hacia al salón/comedor le aporta a este no solo amplitud sino una riqueza de usos acorde con un estilo de vida contemporáneo.
En el espacio semipúblico de la vivienda se plantea la sala de estar. La sala de estar se entiende como un espacio polivalente y multifuncional, un espacio de transición entre la parte pública y privada de la casa.
Arquitectos
PUERTA35 ARQUITECTURA
Ubicación
Santa Cruz de Tenerife
Fotografías
PUERTA35 ARQUITECTURA
Diseño interior
PUERTA35 ARQUITECTURA
Construcción
Paysa S.L.
Superficie construida
360 m2
Año de Proyecto
2017
