Premio Mención Manuel de Oraá y Arcoche 2018-2020

La distribución original de la vivienda excesivamente compartimentada, no respondía a los requerimientos de sus nuevos propietarios, esta se desarrollaba a través de un pasillo largo sin ventilación y luz natural.
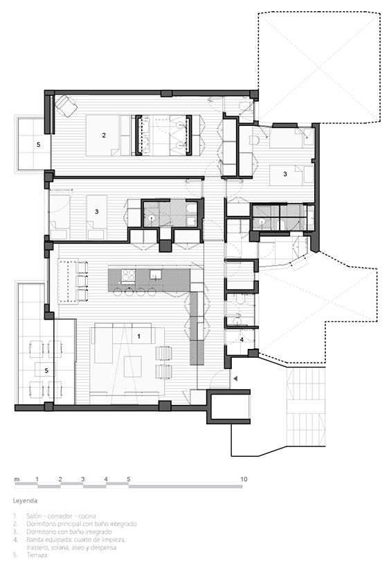
La propuesta de rehabilitación integral, parte de la base de generar espacios flexibles y diáfanos que amplían la sensación espacial y potencian la luz en la vivienda.
El programa engloba un gran espacio de día donde se desarrolla el salón, el comedor y la cocina, este espacio se relaciona con el espacio exterior a través de un cubo de vidrio permeable que potencia las vistas hacia la montaña, en el espacio de noche se desarrollan tres suites equipadas con almacenamiento y baño integrado. La suite principal se desarrolla en torno a un cubo de mármol negro que hace de cabecero, baño y vestidor.
La zona de circulación se estructura en torno a gran mueble central que aporta calidez y contraste a la intervención. Este mueble central engloba, cocina, biblioteca y almacenamiento. En el lado contrario se plantea una banda de almacenamiento donde se desarrolla aseo, cuarto de limpieza y trasteros.
La utilización de elementos neutros en la propuesta, se contraponen con el uso del hormigón visto en los elementos estructurales y el negro en elementos característicos. Por otro lado, la iluminación integrada en foseados y elementos de mobiliario aportan calidez a la intervención y juega un papel fundamental.
Arquitectos
PUERTA35 ARQUITECTURA
Ubicación
Santa Cruz de Tenerife
Fotografías
PUERTA35 ARQUITECTURA
Diseño interior
PUERTA35 ARQUITECTURA
Construcción
WORKMAN S.L.
Superficie construida
165 m2
Año de Proyecto
2020
