
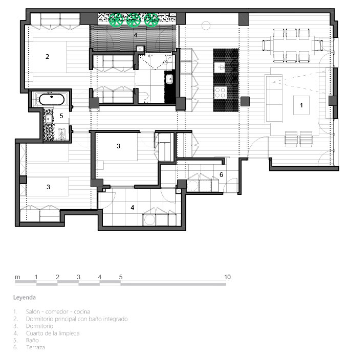
La distribución original de la vivienda excesivamente compartimentada no respondía a los requerimientos de sus nuevos propietarios. La distribución se desarrollaba a través de un pasillo largo sin ventilación y luz natural.
La propuesta por tanto parte de la base de generar espacios flexibles y diáfanos que amplían la sensación espacial y potencian la luz en la vivienda.
La cocina se plantea integrada en el salón donde la isla forma parte del mobiliario.
La utilización de elementos neutros y claros constituyen la base de la propuesta. El roble oscuro de la cocina junto con el hormigón visto de la estructura original aporta carácter y contraste al conjunto de la intervención.
Arquitectos
PUERTA35 ARQUITECTURA
Ubicación
Santa Cruz de Tenerife
Fotografías
PUERTA35 ARQUITECTURA
Diseño interior
PUERTA35 ARQUITECTURA
Construcción
ISGOMEN S.L.
Superficie construida
140 m2
Año de Proyecto
2018
