
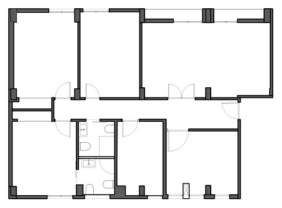
La distribución original de la vivienda excesivamente compartimentada no respondía a los requerimientos de sus nuevos propietarios. La distribución se desarrollaba a través de una pasillo largo sin ventilación y luz natural.
La propuesta por tanto parte de la base de generar espacios flexibles y diáfanos que amplían la sensación espacial y potencian la luz en la vivienda.
La vivienda se desarrolla a través de un gran elemento lineal a modo de biblioteca que articula el espacio de día y de noche de la vivienda.
La cocina se plantea integrada en el salón donde la isla forma parte del mobiliario. Los módulos altos de la cocina estructuran el hall del entrada minimizando las visiones hacia la cocina desde el acceso a la vivienda.
En lo referente a la materialidad se busca un enfrentamiento consciente entre la dureza y la calidez, un hormigón castigado y duro se suaviza mediante el uso de materiales y elementos acogedores como el roble, las tonalidades neutras entre otros que permiten obtener un clima amigable sin renunciar al carácter protagonista de la estructura existente.
Arquitectos
PUERTA35 ARQUITECTURA
Ubicación
Santa Cruz de Tenerife
Fotografías
PUERTA35 ARQUITECTURA
Diseño interior
PUERTA35 ARQUITECTURA
Construcción
Isgomen S.L.
Superficie construida
140 m2
Año de Proyecto
2019
