
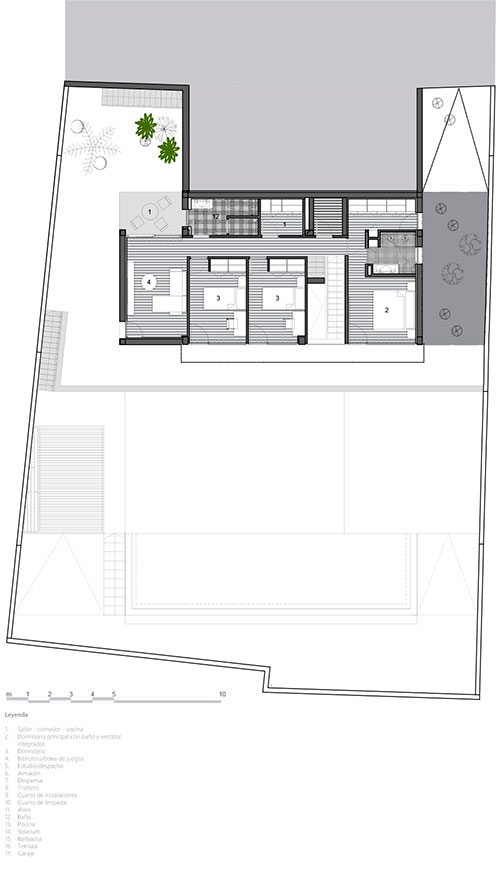
La vivienda se desarrolla en un terreno con un fuerte desnivel. Un volumen de dos plantas desplazado se sitúa sobre un gran bancal de hormigón en donde se desarrollan las zonas de día de la vivienda.
El acceso a la vivienda se plantea desde el nivel superior (nivel de calle).
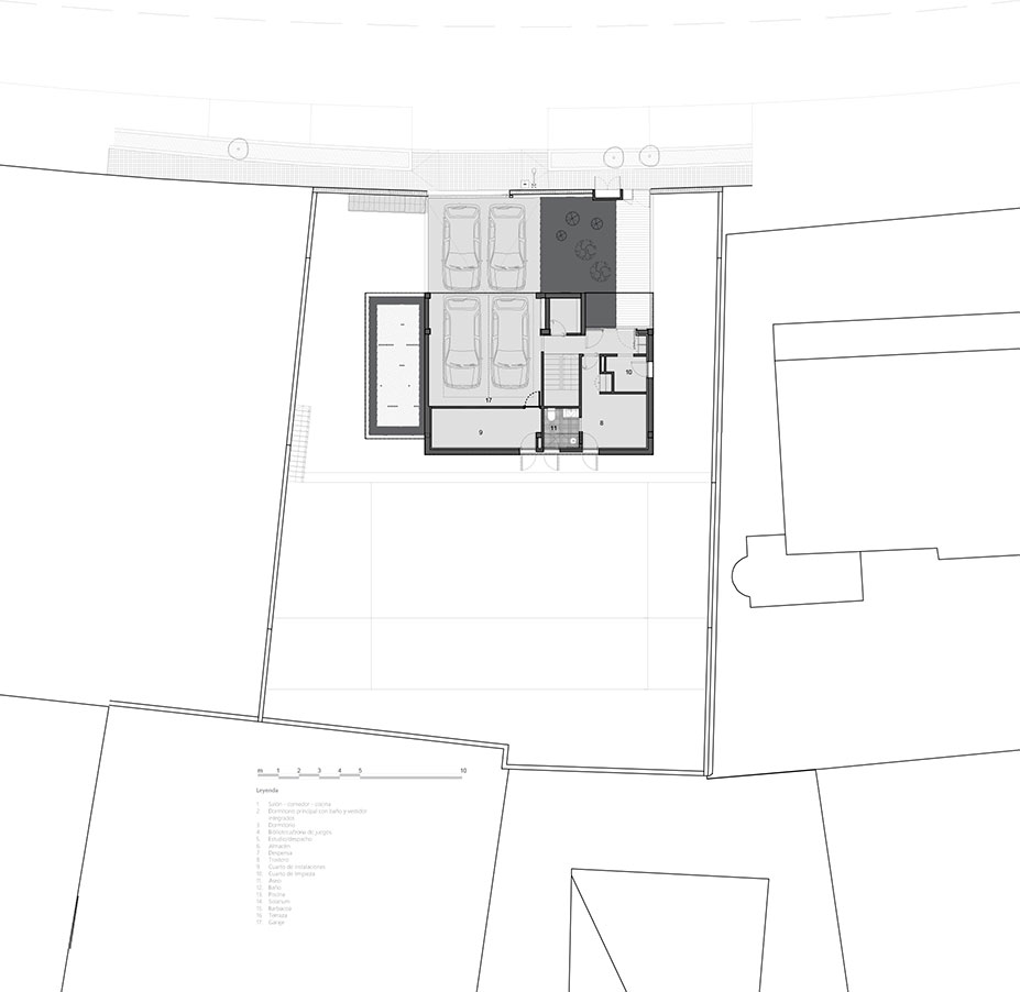
Los dormitorios se plantean en las plantas superiores relacionados con las vistas del mar. La piscina se plantea en el borde entendiéndose como un elemento de contraste en el conjunto.
Arquitectos
PUERTA35 ARQUITECTURA
Ubicación
Tabaiba Alta, Santa Cruz de Tenerife
Infografías
PUERTA35 ARQUITECTURA
Estructura
Jorge Mora
Ingeniería
Dúo Ingeniería
Arquitecto técnico
Víctor Hernández Fernández de Mesa
Diseño interior
PUERTA35 ARQUITECTURA
Superficie construida
220 m2
Año de Proyecto
2021
