
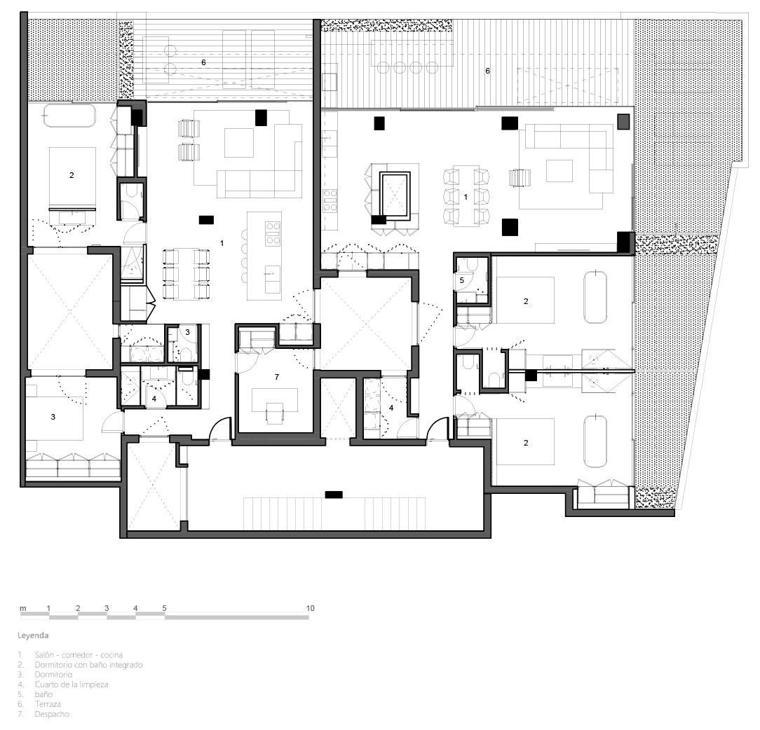
The proposal poses the challenge of designing two houses in one, maintaining the same scale of the spaces of the original house. The original house was developed through a long corridor, the proposal tries to minimize the space consumed by the circulation areas in order to expand the common spaces of the house.
The central element of the house is the perimeter terrace that runs along it. The proposal tries to open all its rooms towards this space.
Architects
PUERTA35 ARQUITECTURA
Location
Santa Cruz de Tenerife
CGI’s
PUERTA35 ARQUITECTURA
Interior design
PUERTA35 ARQUITECTURA
Built area
295 m2
Year
2018
