Martin House

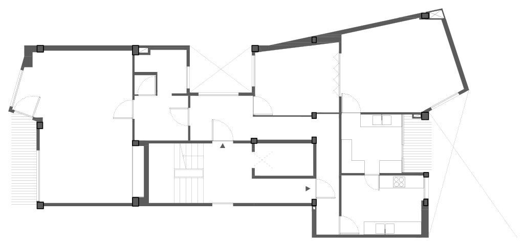
The original distribution of the excessively compartmentalized house did not respond to the requirements of its new owners. The distribution took place through a long corridor without ventilation and natural light.

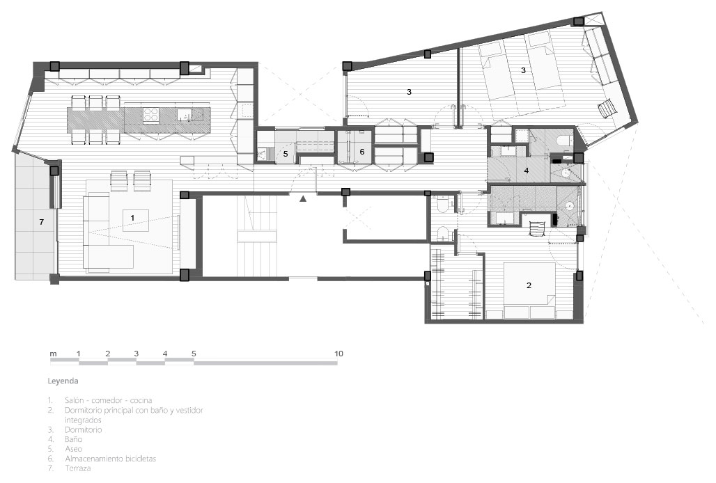
The proposal is therefore based on generating flexible and open spaces that broaden the sensation of space and enhance light in the home.

The house is developed through a large linear element that solves the storage of the entire house and structures the main spaces. At one end of the linear cabinet there is an open library that structures the kitchen space and filters the views from the living room to the kitchen. At another end, a library is again developed that structures the access hall of the rooms.

Regarding the materials, a very neutral palette is proposed, where neutral tones and warm materials such as wood predominate. As a counterpoint, a large veined marble kitchen island is proposed, which becomes the great protagonist of the space.

Architects
PUERTA35 ARQUITECTURA

Location
Santa Cruz de Tenerife

Photographer
PUERTA35 ARQUITECTURA

Interior design
PUERTA35 ARQUITECTURA

Builder
Workman S.L.

Built area
155 m2

Year
2020

LET's START A NEW PROJECT?