
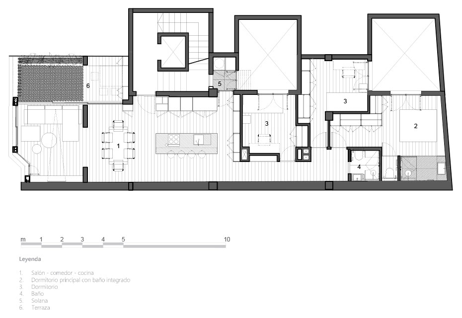
The original distribution of the excessively compartmentalized house did not respond to the requirements of its new owners. The distribution took place through a long corridor without ventilation and natural light.
The proposal is therefore based on generating flexible and open spaces that broaden the sensation of space and enhance light in the home.
It is intended that the distribution spaces of the house be shortened to reduce the elongated sensation of the house, for this the day spaces are opened. The exterior / interior relationship of the house is enhanced. through large sliders that are related to the terrace space. On the other hand, a contrasting cube is proposed that solves part of the kitchen and home storage and gives character to the space. The island is raised stony with tones similar to the pavement.
Architects
PUERTA35 ARQUITECTURA
Location
Santa Cruz de Tenerife
Photographer
PUERTA35 ARQUITECTURA
Interior design
PUERTA35 ARQUITECTURA
Builder
Isgomen S.L.
Built area
134 m2
Year
2019
